Frühjahrsangebot
Exclusive Neubau-Stadtvillen in Sasel
mit ca. 145m² Wohnfläche
Grundstücksgröße ca. 543-589 m²


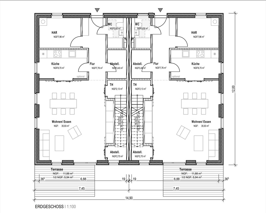
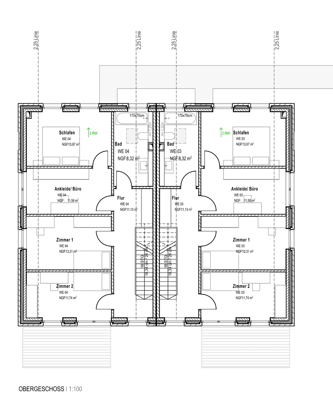
Die angebotenen vier Stadthäuser werden in KFW 55ee-Standard in hochwertiger Bauqualität von der renommierten Baufirma KAGEBAU errichtet. Satteldächer und eine attraktive Klinkerfassadengestaltung mit zahlreichen Fenstern bilden ein hochwertiges Wohnensemble. Der Stadtvilla-Stil sorgt in Kombinationen mit vielen bodentiefen Elementen für ein wohnliches Gefühl in beiden Geschossen. Das Leben ohne Schrägen zeigt keine Grenzen bei der persönlichen Entfaltung in ihren eigenen vier Wänden auf. Der offene Wohn-/Essbereich bietet ein Mittelpunkt zum Zusammenkommen der Familie. Ein weiteres Zimmer im Erdgeschoss bietet zusätzlichen Raum zur freien Nutzung. Modernste Bautechnik mit Wärmeverbundsystem und Wärmepumpen sind hier selbstverständlich. Ebenso Fußbodenheizung im gesamten Haus und Rollläden im Erdgeschoss und vieles mehr.
Die Zuwegung und je ein Pkw Stellplatz pro Haushälfte sind mit Schlüsselübergabe erstellt. Die Häuser werden bezugsfertig, ohne Maler-und Teppicharbeiten auf dem Grundstücksanteil errichtet. Individuelle Innenraum-Gestaltungswünsche können Sie mit dem Bauträger besprechen.
Die Baugenehmigung liegt vor, sodass ein kurzfristiger Baubeginn möglich ist.
Bei näherem Interesse senden wir Ihnen gern eine detaillierte Baubeschreibung mit den Ausstattungsdetails zu und vermitteln ein Beratungsgespräch mit dem Bauträger.
Die Grundstücke sind in hinterer Bebauung, in West/Ostausrichtung gelegen. Die Gärten und Terrassenflächen sind in Westausrichtung geplant. Die Grundstücke sind ideell geteilt, inklusive Zufahrtsanteil. (Siehe Aufteilungsplan).
Haus C Grundstücksanteil ca. 589,28m²
Haus D Grundstücksanteil ca. 543,20m²
Haus E Grundstücksanteil ca. 543,20m²
Haus F Grundstücksanteil ca. 557,31m²
Der Zufahrtsanteil (Gemeinschaftsfläche) für jedes Grundstück beträgt ca. 271,50m²
Baubeginn 2023 Baufertigstellung Frühjahr 2024
Wohnfläche ca. 145m²
Zimmer 5
€ 998.000,- je Stadthaus Schlüsselfertig inklusive Grundstück zzgl. Baunebenkosten.
Unser Frühjahrsangebot ist bis 31.3.2023 gültig
Ihre Ansprechpartnerin: Frau Tanja Köpke
Tel.: +49 40 64508846 und +49 171 6576855
E-Mail:koepke@koepke-immobilien.de

